























有
3LDK 物业 新座市 埼玉县
加载中...
预计总费用(含手续费): $254,625
3 次浏览
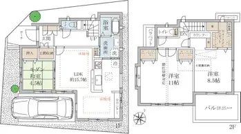
位于埼玉县新座市,建于2015年的木造独栋住宅。户型为3LDK,建筑面积99.58平方米,占地面积100平方米。位于旧分售区内的角地,采光通风良好。所有房间均朝向东南,日照充足。 小学、幼儿园、公园均在步行5分钟范围内,是育儿的理想环境。设有3间卧室和1间浴室,是家庭居住的理想设计。前往主要设施交通便利,生活便利性也得到了充分考虑。
房产详情
建造年份
2015
卧室
3
建筑材料
木造
建筑面积
99.58 平方米
土地面积
100 平方米
土地所有权
永久产权
用地性质
住宅区
楼层
2
停车位
—
短租可行性
较难
最近车站
机场
温泉
超市
便利店
医院/诊所
户型图

来源:查看原始链接
加载中...
预计总费用(含手续费): $254,625
3 次浏览
有
...
