






















有
4SLDK房产 埼玉县埼玉市西区
加载中...
预计总费用(含手续费): $607,737
1 次浏览
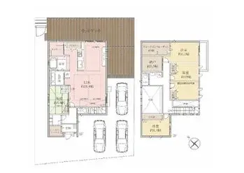
位于埼玉市西区,2016年建成,4SLDK轻钢结构住宅。占地面积277.52平方米,建筑面积145.9平方米,提供宽敞的居住空间。由Panahome施工的定制住宅,品质优良。 本房产设有带卷帘门的停车位3个,可满足拥有多辆车的家庭需求。此外,还配备了木质露台,可用于户外活动和休闲。
房产详情
建造年份
2016
卧室
4
建筑材料
钢结构
建筑面积
145.9 平方米
土地面积
277.52 平方米
土地所有权
永久产权
用地性质
住宅区
楼层
2
停车位
—
短租可行性
待定
最近车站
机场
温泉
超市
便利店
医院/诊所
户型图

来源:查看原始链接
加载中...
预计总费用(含手续费): $607,737
1 次浏览
有
...
