










有
5K 物业 肝付町 鹿儿岛县
加载中...
预计总费用(含手续费): $17,102
8 次浏览
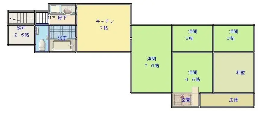
该房产位于鹿儿岛县肝属郡肝付町岸良,是一栋木造独栋住宅。户型为5K,建筑面积105.35平方米,占地面积673.95平方米,非常宽敞。虽然房龄不明,但配备有一个浴室。 宽敞的占地面积可用于多种用途,非常适合居住在自然丰富的环境中。建筑为木造结构,散发着日本传统建筑风格。
房产详情
建造年份
Unknown
卧室
5
建筑材料
木造
建筑面积
105.35 平方米
土地面积
673.95 平方米
土地所有权
永久产权
用地性质
住宅区
楼层
—
停车位
—
短租可行性
待定
最近车站
机场
温泉
超市
便利店
医院/诊所
户型图

来源:查看原始链接
加载中...
预计总费用(含手续费): $17,102
8 次浏览
有
...
