





























有
10K 物件 枕崎市 鹿児島县
加载中...
预计总费用(含手续费): $56,061
8 次浏览
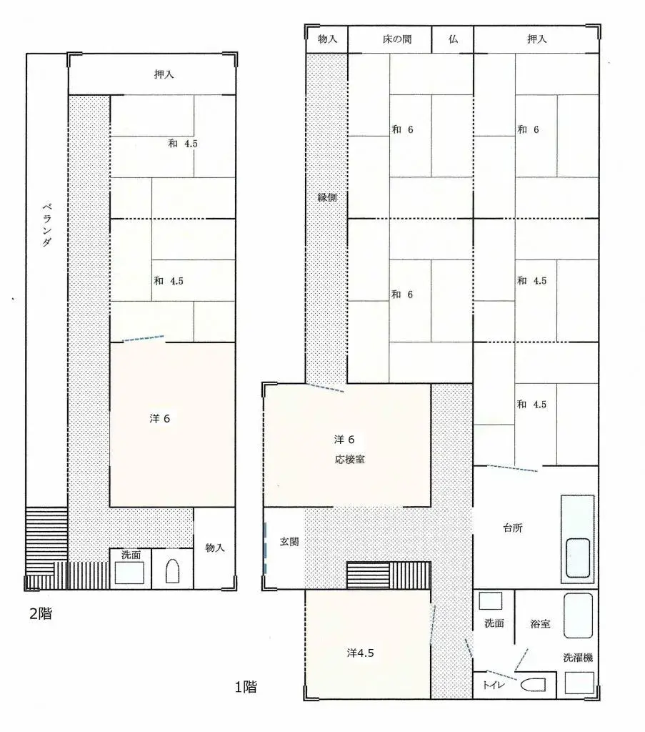
位于鹿儿岛县枕崎市丰留町,是一栋拥有宽敞10K格局的独立住宅。建于1977年,为钢筋混凝土(RC)结构,坚固耐用。建筑面积为232.38平方米,非常宽敞,占地面积为655.30平方米,提供了充裕的空间。 该房产面积宽敞,适合大家庭居住或多用途使用。设有1间浴室,考虑到建筑年代,除了现有使用外,通过翻新还可以创造更大的价值。推荐给希望在自然环境优美地区生活的人士。
房产详情
建造年份
1977
🔴
Pre-1981 seismic standard
卧室
10
建筑材料
Rc
建筑面积
232.38 平方米
土地面积
655.3 平方米
土地所有权
永久产权
用地性质
住宅区
楼层
—
停车位
—
短租可行性
待定
最近车站
机场
温泉
超市
便利店
医院/诊所
户型图

来源:查看原始链接
加载中...
预计总费用(含手续费): $56,061
8 次浏览
有
...
