











有
6K房产 由布市 大分县
加载中...
预计总费用(含手续费): $48,412
11 次浏览
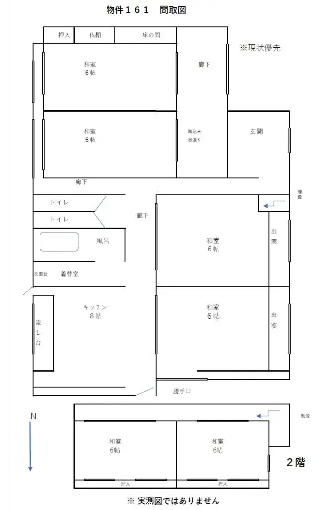
1984年建的木造6K房产。位于大分县由布市庄内町阿苏野,占地面积广达990.00平方米。建筑面积为198.00平方米,提供宽敞的居住空间。 周围环绕着丰富的自然环境,最适合追求宁静安逸生活的人士。配备一个浴室,适合家庭居住。是便于制定长期居住计划的房产。
房产详情
建造年份
1984
卧室
6
建筑材料
木造
建筑面积
198 平方米
土地面积
990 平方米
土地所有权
永久产权
用地性质
住宅区
楼层
—
停车位
—
短租可行性
待定
最近车站
机场
温泉
超市
便利店
医院/诊所
户型图

来源:查看原始链接
加载中...
预计总费用(含手续费): $48,412
11 次浏览
有
...
