






有
大分县大分市5DK房产
加载中...
预计总费用(含手续费): $112,573
1 次浏览
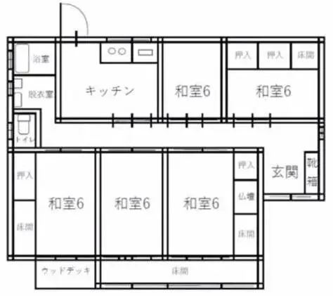
1979年建造的木造5DK房产,建筑面积109.96平方米,占地面积宽敞达362.89平方米。坐落于大分市大字永兴的宁静区域,为您提供宁静的居住环境。配备1间浴室。 由5间卧室和餐厅厨房组成的户型,可满足多样化的居住需求。不仅适合家庭生活,也适合确保个人房间或书房,其特点是实用的空间设计。
房产详情
建造年份
1979
🔴
Pre-1981 seismic standard
卧室
5
建筑材料
木造
建筑面积
109.96 平方米
土地面积
362.89 平方米
土地所有权
永久产权
用地性质
住宅区
楼层
1
停车位
—
短租可行性
较难
最近车站
机场
温泉
超市
便利店
医院/诊所
户型图

来源:查看原始链接
加载中...
预计总费用(含手续费): $112,573
1 次浏览
有
...
