




有
4DK房产 臼杵市 大分县
加载中...
预计总费用(含手续费): $11,528
13 次浏览
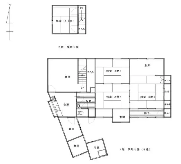
这是一栋木造4DK的独立住宅。占地面积为158.67平方米。1间浴室。建筑年份不明,但位于臼杵市中津浦,可期待宁静的居住环境。通往主要道路的交通便利,生活便利设施点缀其间。 宽敞的4DK户型,适合家庭居住。周边是宁静的住宅区,可以舒适地度过日常生活。本房产推荐给希望居住在自然丰富环境中的人士。还设有停车场,方便自驾出行。
房产详情
建造年份
Unknown
卧室
4
建筑材料
木造
建筑面积
-
土地面积
158.67 平方米
土地所有权
永久产权
用地性质
住宅区
楼层
—
停车位
—
短租可行性
待定
最近车站
机场
温泉
超市
便利店
医院/诊所
户型图

来源:查看原始链接
加载中...
预计总费用(含手续费): $11,528
13 次浏览
有
...
