
















有
大分县丰后大野市6K房产
加载中...
预计总费用(含手续费): $48,412
2 次浏览
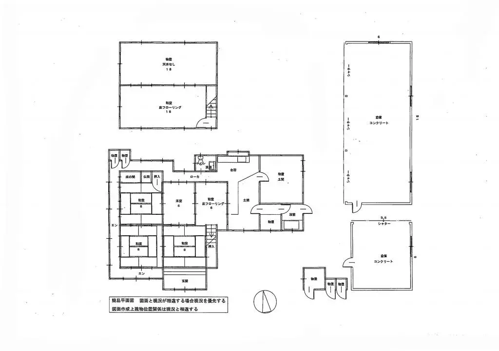
该房产位于大分县丰后大野市大野町两家,是一栋木造的6K独立住宅。建筑面积为142.14平方米,占地面积宽敞,达601.65平方米,提供了多功能利用空间。浴室为1间。 虽然建筑年代不明,但这座拥有日本传统结构的住宅,可以通过翻新焕发新的价值。该房产非常适合考虑居住在自然丰富环境中或希望过扎根于当地生活的人士。
房产详情
建造年份
Unknown
卧室
6
建筑材料
木造
建筑面积
142.14 平方米
土地面积
601.65 平方米
土地所有权
永久产权
用地性质
住宅区
楼层
2
停车位
—
短租可行性
待定
最近车站
机场
温泉
超市
便利店
医院/诊所
户型图

来源:查看原始链接
加载中...
预计总费用(含手续费): $48,412
2 次浏览
有
...
