














有
5LDK房产 熊本县八代市
加载中...
预计总费用(含手续费): $75,232
6 次浏览
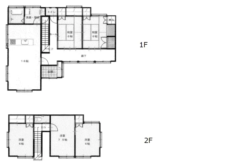
本物件位于熊本县八代市横手町,是一栋建于1980年的木造建筑。宽敞的5LDK户型非常适合家庭居住。建筑总面积为133.55平方米,提供了宽敞的空间。 占地面积为243.74平方米,空间充足,用途多样。设有1间浴室,配备了日常生活所需的设施。该房产适合寻求宁静居住环境的人士。
房产详情
建造年份
1980
🔴
Pre-1981 seismic standard
卧室
5
建筑材料
木造
建筑面积
133.55 平方米
土地面积
243.74 平方米
土地所有权
永久产权
用地性质
住宅区
楼层
2
停车位
—
短租可行性
待定
最近车站
机场
温泉
超市
便利店
医院/诊所
户型图

来源:查看原始链接
加载中...
预计总费用(含手续费): $75,232
6 次浏览
有
...
