










有
6LDK 壱岐市 长崎县房产
加载中...
4 次浏览
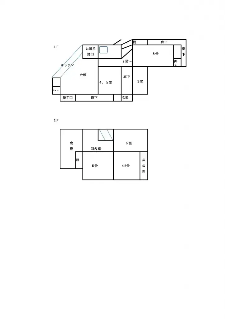
壱岐市胜本町西户触的一栋6LDK木造住宅。建筑面积为82.63平方米,占地面积为105.5平方米,提供宽敞的居住空间。设有一个浴室,虽然建造年份不明,但具有传统的木造建筑的韵味。 该房产坐落于自然环境优美的地方,适合寻求宁静生活的人士。本房产为家庭居住提供了机会,也为通过翻新创造理想家园提供了机会。
房产详情
建造年份
Unknown
卧室
6
建筑材料
木造
建筑面积
82.63 平方米
土地面积
105.5 平方米
土地所有权
永久产权
用地性质
住宅区
楼层
2
停车位
—
短租可行性
待定
最近车站
机场
温泉
超市
便利店
医院/诊所
户型图

来源:查看原始链接
加载中...
4 次浏览
有
...
