









有
7DK 物业 爱媛县 西条市
加载中...
预计总费用(含手续费): $34,485
3 次浏览
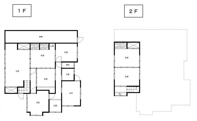
本物件位于爱媛县西条市,是一栋宽敞的7DK木造住宅。建筑面积为203.35平方米,占地面积为199.29平方米,提供了宽敞的居住空间。设有1间浴室,配备了满足日常生活需求的设施。 本物件被指定为第一种居住区,可期待宁静舒适的居住环境。虽然具体的建筑年份不明,但其宽敞的面积和布局非常适合大家庭或两代同堂的住宅。西条市大町的地理位置,兼顾了生活的便利性和居住环境的良好平衡。
房产详情
建造年份
Unknown
卧室
7
建筑材料
木造
建筑面积
203.35 平方米
土地面积
199.29 平方米
土地所有权
永久产权
用地性质
住宅区
楼层
2
停车位
—
短租可行性
待定
最近车站
机场
温泉
超市
便利店
医院/诊所
户型图

来源:查看原始链接
加载中...
预计总费用(含手续费): $34,485
3 次浏览
有
...
