







有
爱媛县今治市8K房产
加载中...
预计总费用(含手续费): $55,365
7 次浏览
1 个收藏
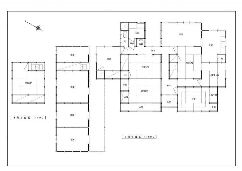
这座位于爱媛县今治市吉海町仁江的木造8K房产,占地面积广阔,达557.82平方米。建筑面积为115.8平方米,配备一个浴室。宁静而自然丰富的居住环境是其魅力所在。 目前房屋为空置状态,但宽敞的格局和占地面积可用于多种用途。通过翻新,也可作为您家庭理想的住所或第二居所。
房产详情
建造年份
Unknown
卧室
8
建筑材料
木造
建筑面积
115.8 平方米
土地面积
557.82 平方米
土地所有权
永久产权
用地性质
住宅区
楼层
—
停车位
—
短租可行性
待定
最近车站
机场
温泉
超市
便利店
医院/诊所
户型图

来源:查看原始链接
加载中...
预计总费用(含手续费): $55,365
7 次浏览
1 个收藏
有
...
