






有
8DK今治市爱媛县房产
加载中...
预计总费用(含手续费): $20,579
43 次浏览
1 个收藏
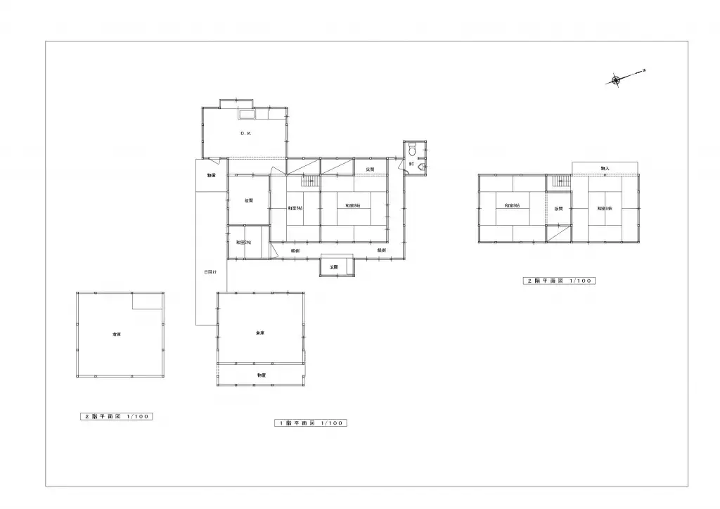
本物件位于爱媛县今治市伯方町,拥有宽敞的8DK户型。该建筑为木造,占地面积195.28平方米。虽然建筑年代不明,但配备1间浴室,非常适合多人居住或作为爱好空间。 这里被面向濑户内海的伯方岛丰富的自然环境所环绕,可以实现宁静安逸的生活。广阔的占地和多样的房间蕴藏着根据居住者生活方式进行多样化利用的可能性,通过翻新也可打造理想的居所。
房产详情
建造年份
Unknown
卧室
8
建筑材料
木造
建筑面积
2 平方米
土地面积
195.28 平方米
土地所有权
永久产权
用地性质
住宅区
楼层
1
停车位
—
短租可行性
待定
最近车站
机场
温泉
超市
便利店
医院/诊所
户型图

来源:查看原始链接
加载中...
预计总费用(含手续费): $20,579
43 次浏览
1 个收藏
有
...
