







有
8DK房产 满浓町 香川县
加载中...
预计总费用(含手续费): $82,440
5 次浏览
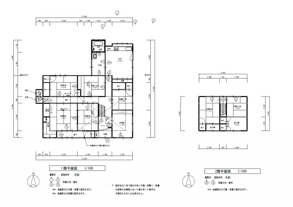
该房产位于香川县仲多度郡满浓町长尾,是一栋宽敞的8DK木造住宅。建筑面积达176.3平方米,可满足多人居住或作为爱好空间等多种用途。虽然建于1973年,但其坚固的木造结构,经过妥善维护,今后仍可长期使用。 宽敞的格局适合大家庭或两代同堂的住宅,每个房间独立,可确保隐私。宁静的居住环境是其魅力所在,同时兼具区域便利性。设有1间浴室。请抓住这个机会,考虑在这历史悠久的地区生活。
房产详情
建造年份
1973
🔴
Pre-1981 seismic standard
卧室
8
建筑材料
木造
建筑面积
176.3 平方米
土地面积
0 平方米
土地所有权
永久产权
用地性质
住宅区
楼层
2
停车位
—
短租可行性
待定
最近车站
机场
温泉
超市
便利店
医院/诊所
户型图

来源:查看原始链接
加载中...
预计总费用(含手续费): $82,440
5 次浏览
有
...
