









有
物件 德岛县 那贺町
加载中...
2 次浏览
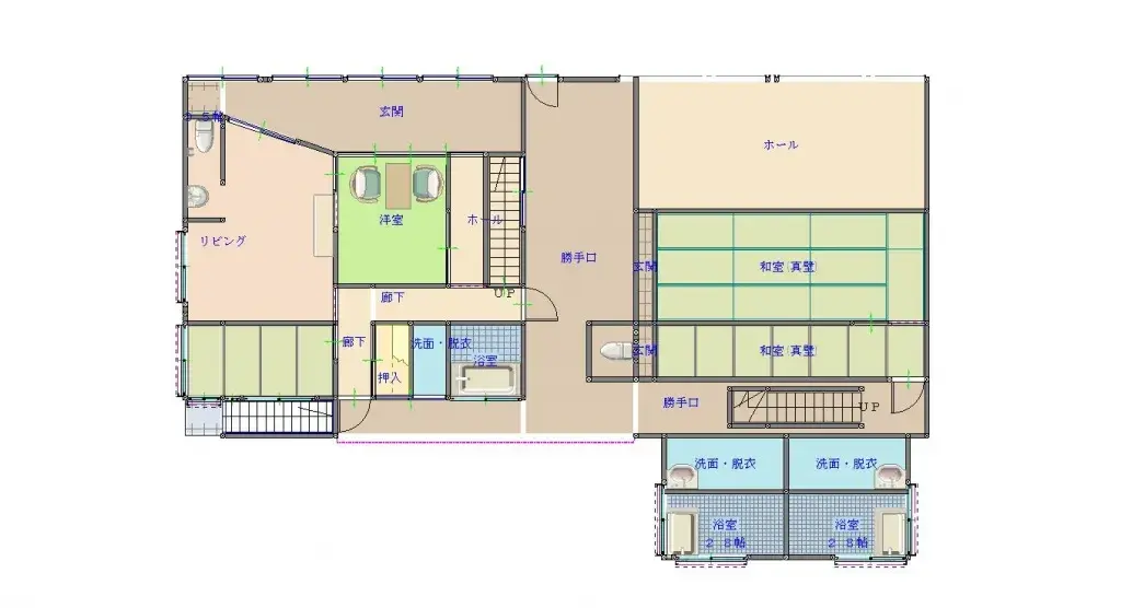
位于德岛县那贺町小浜的钢筋混凝土结构房产。占地面积为82.05平方米,结构坚固。虽然房龄不明,但通过翻新,具有创造新价值的潜力。室内配备一间浴室。 该房产坐落于自然丰富的那贺町宁静的环境中,适合寻求宁静居住环境的人士。钢筋混凝土结构耐用性强,可长期使用。考虑到通往主要道路的便利性,生活便利性也得到了保障。
房产详情
建造年份
Unknown
卧室
-
建筑材料
Rc
建筑面积
-
土地面积
82.05 平方米
土地所有权
永久产权
用地性质
住宅区
楼层
2
停车位
—
短租可行性
待定
最近车站
机场
温泉
超市
便利店
医院/诊所
户型图

来源:查看原始链接
加载中...
2 次浏览
有
...
