










有
9DK物件 八头町 鸟取县
加载中...
预计总费用(含手续费): $24,056
11 次浏览
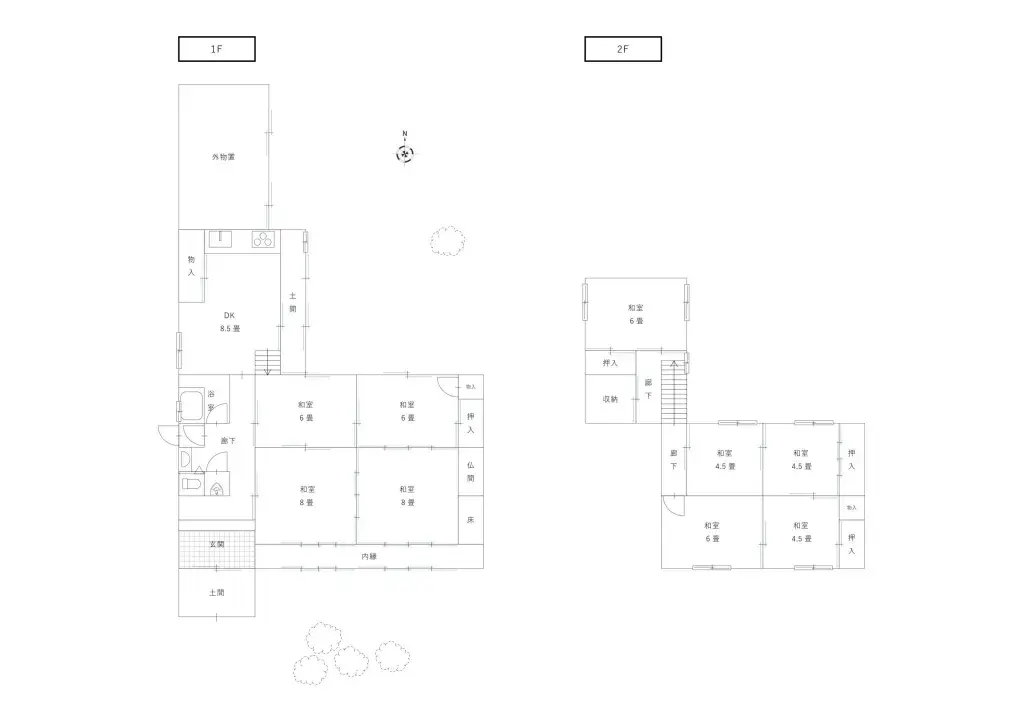
该房产建于1981年,为木结构住宅,拥有宽敞的9DK布局。建筑面积为160.32平方米,提供充裕的空间,非常适合大家庭或多功能使用。配备1间浴室。 占地面积广阔,为399.78平方米,可用于庭院、停车场等多种用途。该房产位于鸟取县八头郡八头町东部,是追求自然环境居住者的理想选择。通过翻新,您可以实现理想的家园。
房产详情
建造年份
1981
⚠️
Seismic standard unclear
卧室
9
建筑材料
木造
建筑面积
160.32 平方米
土地面积
399.78 平方米
土地所有权
永久产权
用地性质
住宅区
楼层
2
停车位
—
短租可行性
待定
最近车站
机场
温泉
超市
便利店
医院/诊所
户型图

来源:查看原始链接
加载中...
预计总费用(含手续费): $24,056
11 次浏览
有
...
