










有
7DK 物业 名张市 三重县
加载中...
预计总费用(含手续费): $76,701
3 次浏览
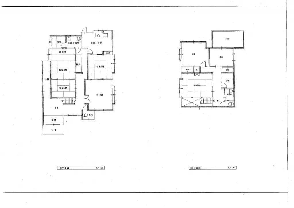
位于三重县名张市つつじが丘南,是一栋宽敞的7DK木造住宅。建于1991年,建筑面积为186.25平方米,占地面积为232.62平方米。设有一个浴室,其设计非常适合多人居住。 周边是宁静的住宅区,提供了宁静的居住环境。考虑到建筑年代,通过翻新内部装修和设备,可以追求现代化的舒适性。请将其作为永久居住的选择进行考虑。
房产详情
建造年份
1991
卧室
7
建筑材料
木造
建筑面积
186.25 平方米
土地面积
232.62 平方米
土地所有权
永久产权
用地性质
住宅区
楼层
—
停车位
—
短租可行性
较难
最近车站
机场
温泉
超市
便利店
医院/诊所
户型图

来源:查看原始链接
加载中...
预计总费用(含手续费): $76,701
3 次浏览
有
...
