




有
7DK房产 纪北町 三重县
加载中...
预计总费用(含手续费): $65,906
3 次浏览
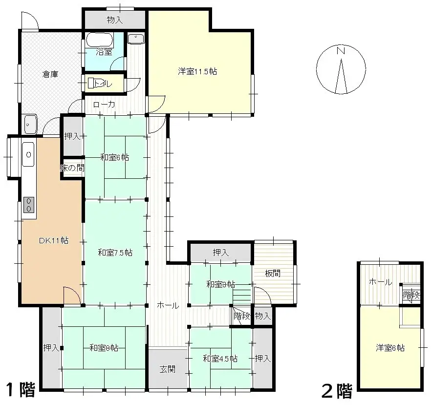
位于三重县北牟娄郡纪北町上里的7DK木造住宅。该房产建于1952年,占地面积广阔,达621.60平方米,可满足多样化的用途需求。建筑面积为189.29平方米,确保了宽敞的居住空间。 该房产非常适合利用其大面积土地建造花园或菜园,或通过翻新改造成现代化的住宅。考虑到通往主要生活设施的便利性,该房产推荐给寻求宁静居住环境或希望在宽敞土地上生活的人士。
房产详情
建造年份
1952
🔴
Pre-1981 seismic standard
卧室
7
建筑材料
木造
建筑面积
189.29 平方米
土地面积
621.6 平方米
土地所有权
永久产权
用地性质
住宅区
楼层
2
停车位
—
短租可行性
待定
最近车站
机场
温泉
超市
便利店
医院/诊所
户型图

来源:查看原始链接
加载中...
预计总费用(含手续费): $65,906
3 次浏览
有
...
