

有
富山县鱼津市5DK房产
加载中...
预计总费用(含手续费): $40,048
9 次浏览
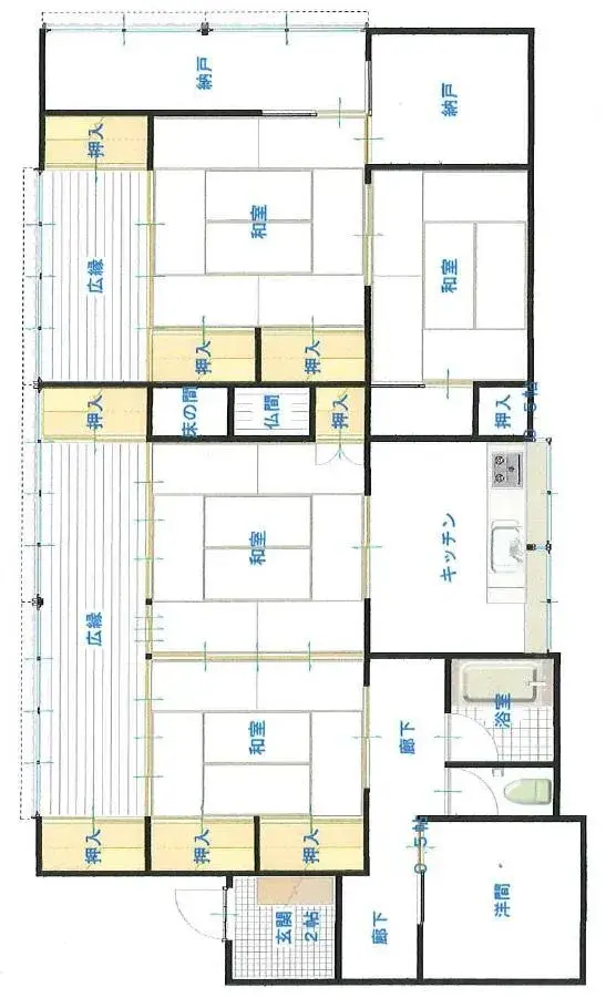
位于鱼津市吉岛的这栋木造住宅建于1971年,为5DK格局。建筑面积为60.81平方米,占地面积为355.91平方米,提供了宽敞的居住空间。配备一个浴室。 本房产的特点是扎根于社区的宁静居住环境。多功能的5DK格局能够灵活适应家庭结构的变化。周边环境宁静,生活便利设施交通便利。
房产详情
建造年份
1971
🔴
Pre-1981 seismic standard
卧室
5
建筑材料
木造
建筑面积
60.81 平方米
土地面积
355.91 平方米
土地所有权
永久产权
用地性质
住宅区
楼层
1
停车位
—
短租可行性
待定
最近车站
机场
温泉
超市
便利店
医院/诊所
户型图

来源:查看原始链接
加载中...
预计总费用(含手续费): $40,048
9 次浏览
有
...
