













有
4DK公寓 饭能市 埼玉县
加载中...
预计总费用(含手续费): $31,009
262 次浏览
5 个收藏
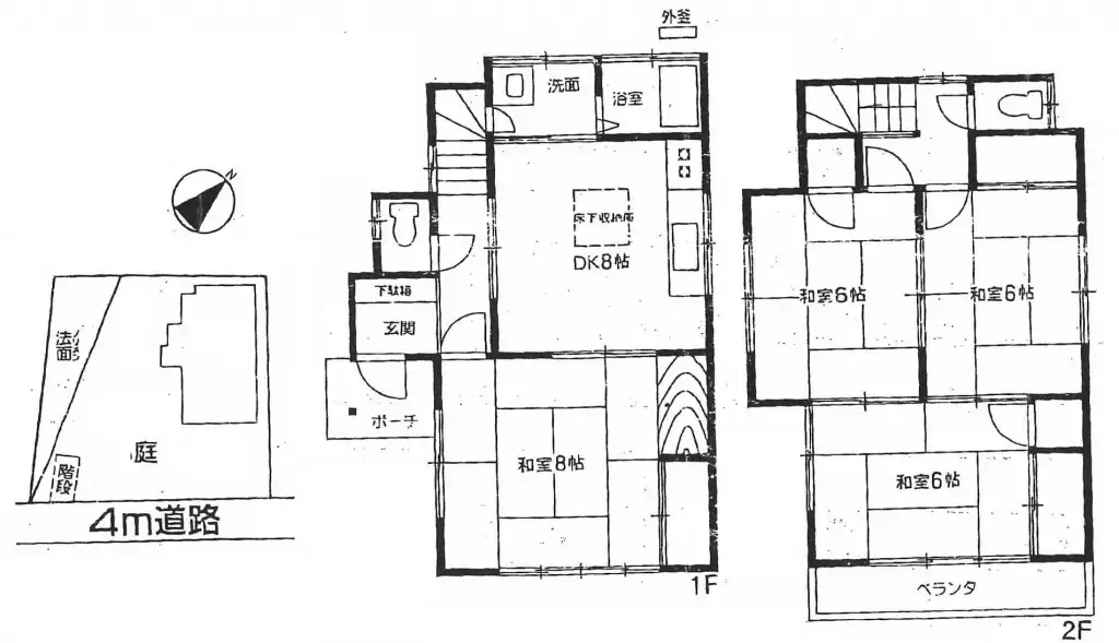
埼玉県饭能市的这栋4DK独栋住宅建于1989年,为木造结构。建筑面积为82.18平方米,占地面积为280.67平方米,拥有宽敞的居住空间和庭院。该房产适合那些希望在自然环境优美的地方生活,同时又考虑交通便利性的人士。 虽然建筑已有一定年限,但通过定期维护,房屋状况良好。配备有1间浴室,可满足日常生活所需。周边公园和绿地众多,是散步和户外活动的理想地点。
房产详情
建造年份
1989
卧室
4
建筑材料
木造
建筑面积
82.18 平方米
土地面积
280.67 平方米
土地所有权
永久产权
用地性质
住宅区
楼层
2
停车位
—
短租可行性
待定
最近车站
机场
温泉
超市
便利店
医院/诊所
户型图

来源:查看原始链接
加载中...
预计总费用(含手续费): $31,009
262 次浏览
5 个收藏
有
...
