











有
3K 物业 河北町 山形县
加载中...
预计总费用(含手续费): $62,319
5 次浏览
位于山形县西村山郡河北町的3K房产。这是一处建在占地317.35平方米宽敞土地上的宽敞住宅。虽然建于1966年,但只要精心维护,就能确保舒适的居住空间。 本房产为木造建筑,建筑面积为87.56平方米。广阔的土地可用于家庭菜园、停车位等多种用途。这里自然环境优美,适合追求宁静生活的人士。
房产详情
建造年份
1966
🔴
Pre-1981 seismic standard
卧室
3
建筑材料
木造
建筑面积
87.56 平方米
土地面积
317.35 平方米
土地所有权
永久产权
用地性质
住宅区
楼层
1
停车位
—
短租可行性
待定
最近车站
机场
温泉
超市
便利店
医院/诊所
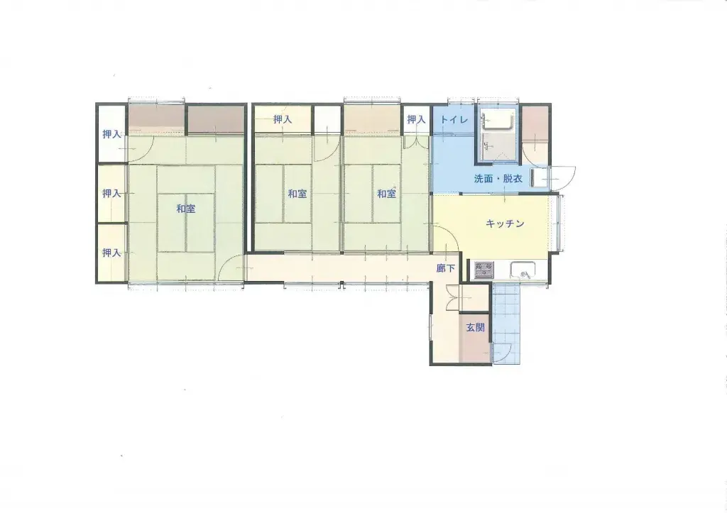
户型图

来源:查看原始链接
加载中...
预计总费用(含手续费): $62,319
5 次浏览
有
...
