

有
7DK房产 山形市 山形县
加载中...
预计总费用(含手续费): $69,493
3 次浏览
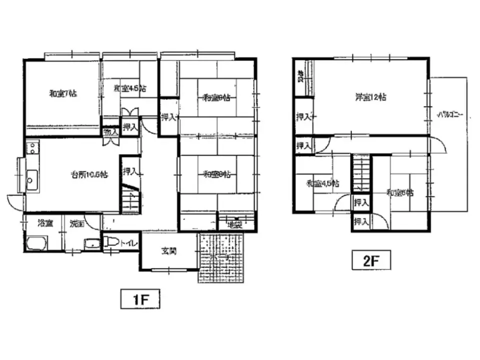
该房产位于山形县山形市鸟居丘,是一栋7DK的木结构住宅。建于1982年,建筑面积为149.05平方米,占地面积为214.33平方米。配有1间浴室,宽敞的布局是其特色。 该房产坐落于宁静的住宅区,周边环境良好。虽然房龄较长,但通过利用木结构特点进行的翻新,可以适应现代生活方式。适合家庭居住,欢迎考虑。
房产详情
建造年份
1982
卧室
7
建筑材料
木造
建筑面积
149.05 平方米
土地面积
214.33 平方米
土地所有权
永久产权
用地性质
住宅区
楼层
—
停车位
—
短租可行性
待定
最近车站
机场
温泉
超市
便利店
医院/诊所
户型图

来源:查看原始链接
加载中...
预计总费用(含手续费): $69,493
3 次浏览
有
...
