














有
5K房源青森县田子町
加载中...
预计总费用(含手续费): $17,102
4 次浏览
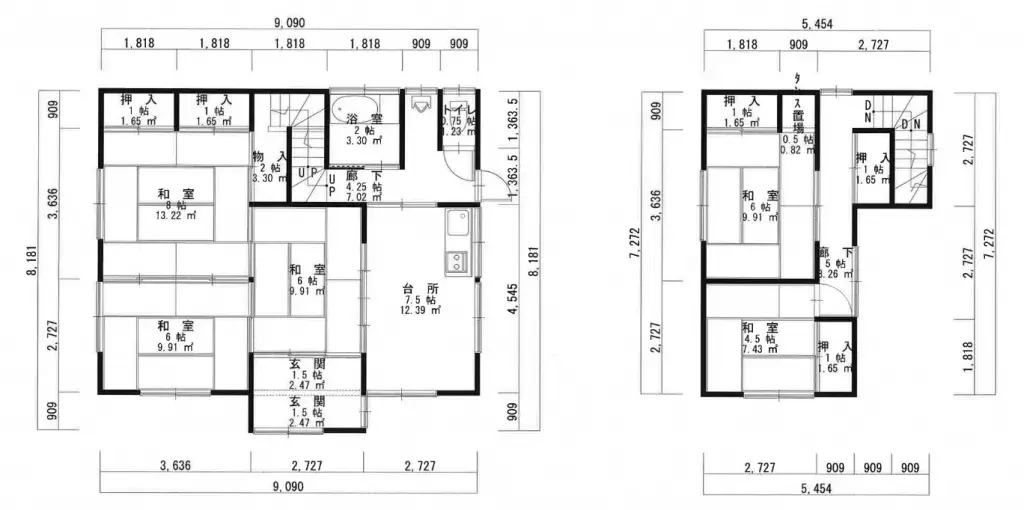
该房产位于青森县三户郡田子町,是一栋建于1975年的木造房屋。户型为5K,建筑面积为100.19平方米,占地面积为233.0平方米。虽然房龄较长,但宽敞的户型可满足多样化的居住需求。 周边环境为宁静的住宅区,可期待平静的生活。考虑到通往主要道路的便利性,该房产适合那些希望在自然环境优美的地方生活,同时又能保证日常便利性的人。这将是一个着眼于长期居住的稳妥选择。
房产详情
建造年份
1975
🔴
Pre-1981 seismic standard
卧室
5
建筑材料
木造
建筑面积
100.19 平方米
土地面积
233 平方米
土地所有权
永久产权
用地性质
住宅区
楼层
2
停车位
—
短租可行性
待定
最近车站
机场
温泉
超市
便利店
医院/诊所
户型图

来源:查看原始链接
加载中...
预计总费用(含手续费): $17,102
4 次浏览
有
...
