





















有
7K 物业 三户郡田子町 青森县
加载中...
预计总费用(含手续费): $41,459
3 次浏览
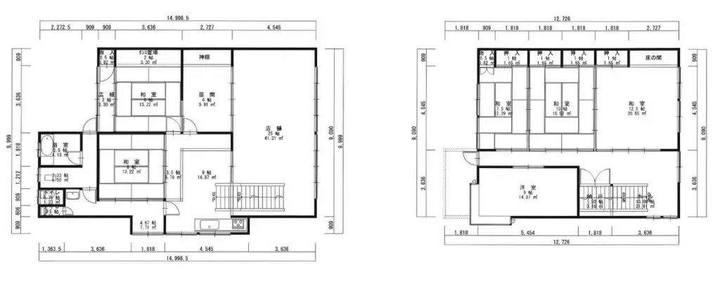
位于青森县三户郡田子町,拥有宽敞的7K户型,极具吸引力。该房产建于1985年,为木造二层建筑,总建筑面积为132.01平方米,可为大家庭提供充足的居住空间。占地面积为372.83平方米,宽敞的场地可用于庭院或停车位。 通过根据您的生活方式进行翻新,此房产可以改造成一个更舒适的家。它设有一间浴室,非常适合那些在大自然环境中寻求宁静生活的人。
房产详情
建造年份
1985
卧室
7
建筑材料
木造
建筑面积
132.01 平方米
土地面积
372.83 平方米
土地所有权
永久产权
用地性质
住宅区
楼层
2
停车位
—
短租可行性
待定
最近车站
机场
温泉
超市
便利店
医院/诊所
户型图

来源:查看原始链接
加载中...
预计总费用(含手续费): $41,459
3 次浏览
有
...
