









有
6DK青森县三户町房产
加载中...
预计总费用(含手续费): $48,412
1 次浏览
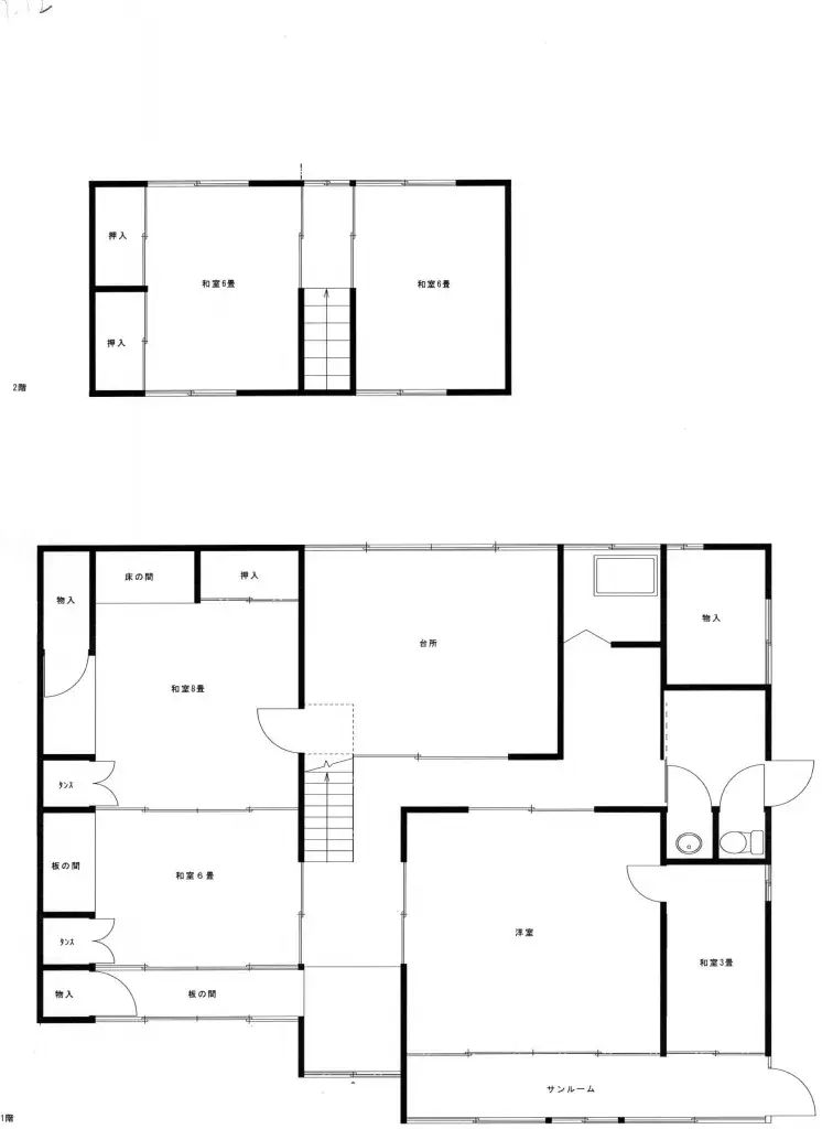
该房产位于青森县三户郡三户町大字泉山,是一处木造的6DK住宅。宽敞的户型可满足多样的居住风格,尤其适合家庭居住。浴室配备一处,日常生活的必要设施齐全,可舒适生活。 虽然建筑年代不明,但周边环境宁静祥和,是住宅区,推荐给希望居住在自然丰富地区的人士。交通方面,连接当地主要道路相对便利,驾车出行方便。适合寻求安静居住环境的人士。
房产详情
建造年份
Unknown
卧室
6
建筑材料
木造
建筑面积
-
土地面积
0 平方米
土地所有权
永久产权
用地性质
住宅区
楼层
2
停车位
—
短租可行性
待定
最近车站
机场
温泉
超市
便利店
医院/诊所
户型图

来源:查看原始链接
加载中...
预计总费用(含手续费): $48,412
1 次浏览
有
...
